дома фахверк

дома амбары

НАЗАД
Новороссийск

8-800-707-18-66

Заказать обратный звонок
с 10.00 до 19.00 ч.

ПРОЕКТ Бавария 160 м2

wedsm

ПРОЕКТ Бавария 160 м2

weghj

Площадь

160 м2

Материал стен
панели GROGLEX
Комнат

4

Санузлов

2

Цена комплекта с завода

13 108 500 р.

Цена с монтажом

13 844 500 р.

Получить смету
Забронировать дом

Проект Бавария 160 м2

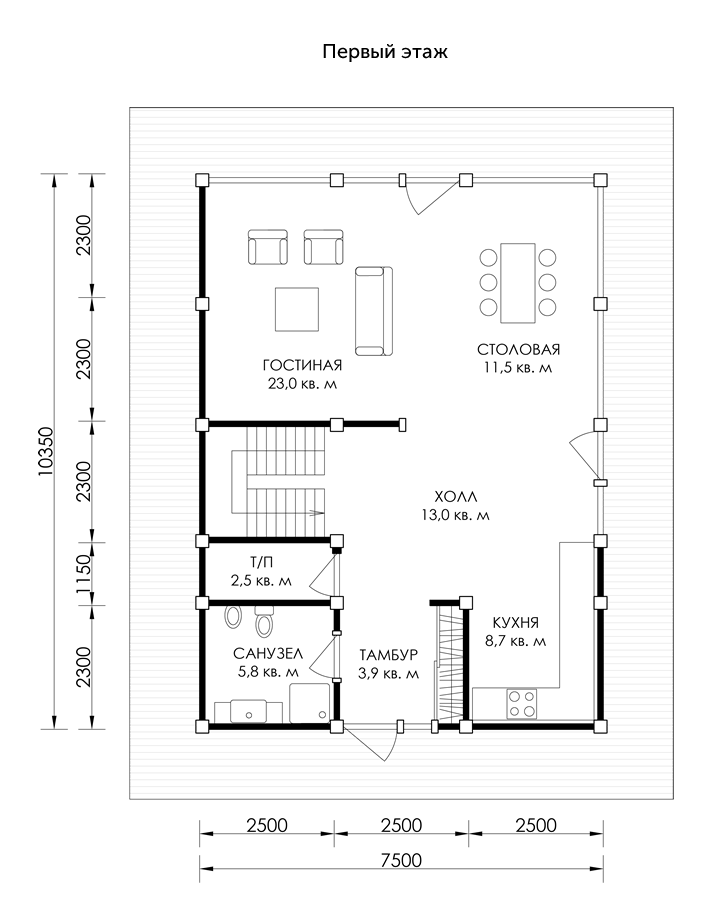
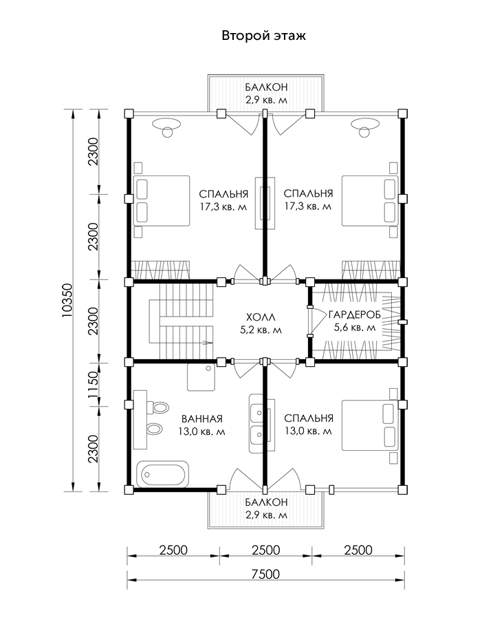
Коттедж выполнен в традиционном немецком стиле загородной архитектуры Фахверк. Продуманная планировка создадут комфорт круглогодичному проживанию семьи из 3-5 человек. Просторная гостиная и уютная кухня-столовая, послужит местом отдыха, для гостей, вечерних ужинов в кругу семьи. Второй этаж дома – это зона личных апартаментов владельцев, связанных холлом: три спальных комнаты и просторная ванная.

Планировка - 1 этаж

Планировка - 2 этаж

Хочу изменить проект

Это совсем просто! В нашей компании работает штат опытных архитекторов, которые на основании ваших идей создадутиндивидуальные планировки, внесут корректировки в фасад. Архитектор может встретиться с вами, как в одном из наших офисов, так и в любом другом удобном для вас месте, в том числе на участке.

Видео обзоры

ПРЕИМУЩЕСТВА ДОМОВ
СЕРИИ ФАХВЕРК

ТЕХНОЛОГИЯ

Немецкая технология фахверк появилась еще в XIV веке. В основе такого дома прочный каркас из клееных деревянных конструкций, который не прячется под обшивкой, а намеренно остается видимым. Когда-то ограждающие конструкции заполняли смесями на основе глины или кирпичом. Сегодня в тренде освобождение стен от глухого заполнения в пользу эффектного панорамного остекления.

КОНСТРУКТИВ

Уникальность фахверковых домов в том, что несущий каркас из клееной древесины можно «нарастить» в длину кратно 2,6 м, тем самым увеличить полезную площадь дома. Фахверковый дом можно менять и внешне, например, варьируя площадь остекления. Подобная легкость и творческая свобода в создании собственного дома – уникальная особенность проектов этой серии.

ЭНЕРГОЭФФЕКТИВНОСТЬ

Фахверковые дома, несмотря на свою «прозрачность» имеют рекордно низкую теплопроводность. Современные утеплители и специальные стеклопакеты делают дом действительно энергоэффективным. Несмотря на сравнительно небольшую толщину стен, фахверковые дома в разы теплее кирпичных. Кроме того, за счет уменьшения толщины стен полезная площадь дома увеличивается примерно на 10%.

ВЛАГОСТОЙКОСТЬ

Технологичный клееный конструкционный брус и PIR утеплители являются максимально влагостойкими материалами. Под действием внешней среды они не будут деформироваться, а значит дом с течением времени сохранит точную геометрию формы. Продувания, промерзания и прочие негативные явления исключены.

ЭКОЛОГИЧНОСТЬ

При изготовлении клееных деревянных конструкций мы используем клеевые системы всемирно известного прозводителя AkzoNobel (Швеция). Клеевые составы абсолютно безопасны для здоровья, что подтверждают испытания независимых центров и соответствующие сертификаты. Утеплители PIR также не выделяют вредных веществ — сегодня это самый экологичный и безопасный теплоизоляционный материал.

ПОЖАРОУСТОЙЧИВОСТЬ

Несущие клееные деревянные конструкции гораздо безопаснее бетонных или металлических. Распространение огня сдерживается в течение 30 и более минут. PIR утеплители в панелях под действием огня лишь обугливаются — не плавятся, образуя горящие капли расплава, и не поддерживают распространение пламени.

МОНТАЖ

Монтаж домокомплекта относительно прост и не требует больших временных затрат, все работы занимают порядка 10-14 дней. Вы можете заказать сборку дома в нашей компании или осуществить монтаж своими силами. Приобретая домокомплект, вы получите необходимый комплект чертежей и инструкций.

СТОИМОСТЬ

Благодаря стандартизации деталей и массовости производства мы предлагаем действительно качественные современные дома по меньшей стоимости.

Уже сделали расчёт в другой компании?

Никогда не поздно найти более интересные условия и избежать уловок строителей!

Мы сделаем бесплатный аудит сметы и укажем на возможные «подводные камни»

Прикрепить файл
Отправить на расчёт

Посмотрите галерею выполненных проектов